Exclusive: Hidden Chamber in China's 'Super Embassy' in London Revealed Near Critical Cables, Sparking Surveillance Concerns
A security expert has issued a stark warning that China's proposed 'super embassy' in London could be used as a surveillance hub to monitor the entire European continent, citing the discovery of a secret chamber located perilously close to critical fiber-optic cables.
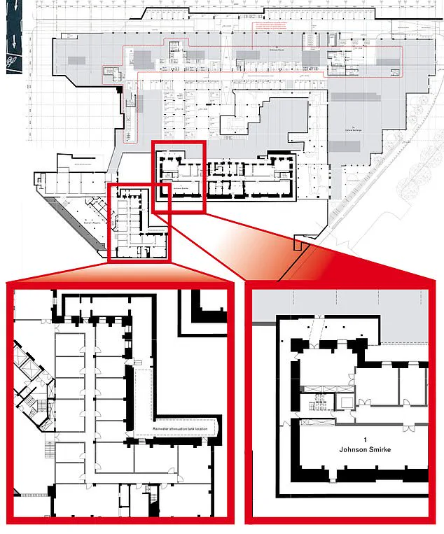
Unredacted planning documents, revealed overnight, reportedly show a hidden triangular room in the north-west corner of the building—just metres away from a vital network of cables that transmit financial data from the City of London and Canary Wharf.
The proximity of this room to such sensitive infrastructure has raised immediate red flags among intelligence analysts and security officials.
Professor Anthony Glees, a professor of intelligence and security at the University of Buckingham, described the situation as 'absolutely mad' if the Chinese government is allowed to proceed with the development.
Speaking on LBC's Breakfast with Nick Ferrari, he emphasized the alarming proximity of the proposed chamber to the cables, stating, 'You can see from the plans how close rooms run to those cables—they can be tapped very easily.' He further warned that the room's design, including its potential to house large servers via its heating systems, could transform the embassy into 'the Chinese intelligence hub for the whole of Europe.' The concerns extend beyond espionage.
Professor Glees also highlighted the size and scale of the embassy complex, suggesting it could be used to intimidate and detain critics of the Chinese government.
He referenced a 2022 incident in Manchester, where a Hong Kong democracy protester was dragged into the Chinese consulate and assaulted, as evidence of the potential for such activities to escalate.
His warnings have now been echoed by a group of Labour MPs, who have urged Prime Minister Sir Keir Starmer to reject the plans, which could be approved as soon as this week.
In a letter to Communities Secretary Steve Reed, the MPs raised serious security concerns, arguing that the embassy could be used to 'step up intimidation' against dissidents.
Sarah Champion, a member of parliament's Joint Committee on the National Security Strategy, described the proposal's risks as 'significant and unresolved.' The letter cited China's 'recent track record of Chinese espionage cases, interference activities, and issuing of bounties against UK-based Hong Kongers,' as well as the fact that the embassy would be built above infrastructure 'critical to both the UK's economic and national security.' Despite these warnings, Downing Street has insisted that national security concerns related to the planning application have been 'considered and addressed.' A Prime Minister's official spokesman told reporters that the decision would be made by the Secretary of State for Housing, Communities and Local Government, adding that 'national security is the first duty of any government' and that the process had been handled with 'core priority' throughout.

However, the spokesman declined to provide further details, citing the 'quasi-judicial process' governing the decision.
The planning documents reveal that the secret room is triangular in shape, measuring up to 40 metres across and 2-3 metres deep.
Its location and dimensions have intensified fears that it could be used for covert surveillance operations, given its proximity to the fiber-optic cables.
As the UK government faces mounting pressure to reject the proposal, the debate over the embassy's potential role in espionage and its implications for European security has entered a critical phase, with a decision expected by 20 January.
In a startling revelation that has sent shockwaves through Westminster, documents obtained by The Telegraph indicate that the proposed Chinese 'super-embassy' on the site of the former Royal Mint in London may be equipped with advanced infrastructure capable of housing high-tech computing systems.
The discovery of at least two air extraction systems within the subterranean complex has raised immediate questions about the nature of the operations that could be conducted beneath the surface.
These systems, typically associated with facilities requiring significant heat dissipation, suggest the possibility of hosting equipment that generates substantial thermal energy—such as servers or other high-performance computing hardware.
The implications of this finding have deepened the already contentious debate surrounding the embassy’s construction, which has been mired in controversy for years.
The scale of the project is staggering.
According to insiders, the embassy would be built over a network of 208 secret rooms, many of which remain hidden from public view in planning proposals.

This labyrinthine subterranean infrastructure, reportedly concealed beneath the historic site, has sparked widespread alarm among security experts and members of Parliament.
The site, pending approval from Prime Minister Sir Keir Starmer, is set to become the new diplomatic headquarters for China—a move that has already drawn fierce opposition from across the political spectrum.
MPs from both major parties have united in calling on the government to reject the application, citing grave security risks tied to the proximity of the proposed embassy to critical communications infrastructure in the City of London.
Sources close to Downing Street have revealed that the government is under intense pressure to approve the plans before the Prime Minister’s upcoming state visit to China.
This diplomatic maneuver, aimed at smoothing relations with President Xi Jinping following a series of planning delays, has been met with fierce criticism.
Critics argue that the timing is deeply concerning, as it appears to prioritize political expediency over national security.
The potential for the embassy to function as a 'spy centre' has become a central point of contention.
Fears are mounting that China could exploit the proximity of the site to the UK’s vital underground communication cables, potentially tapping into them to intercept sensitive information.
The concerns are not unfounded.
Documents leaked by The Mail on Sunday have exposed the existence of 'spy dungeons'—two suites of basement rooms and a tunnel, with their purpose redacted for security reasons.
These undisclosed spaces, located directly adjacent to the city’s critical communication cables, have only intensified suspicions.

Security expert Professor Alan Woodward has warned that the proximity of the cables to the proposed embassy’s infrastructure is a 'red flag,' describing it as an 'enormous temptation' for espionage activities.
The potential for China to access these cables, which serve financial institutions, data centers, and key government entities, has become a focal point of the growing crisis.
The cables in question, located along Mansell Street, are owned by major telecommunications firms including BT, Colt Technologies, and Verizon.
These lines carry communications between the City of London and Canary Wharf, connecting some of the world’s most influential financial institutions.
The proximity of the embassy to these cables—directly between the City and Canary Wharf—has raised alarms about the vulnerability of the UK’s digital infrastructure.
The site is also near three major data centers, including the London Stock Exchange, further compounding the risks.
The implications of a potential breach are staggering, with the potential for sensitive financial and governmental data to be intercepted or manipulated.
The controversy surrounding the embassy has simmered since 2018, when China purchased the 215,280 sq ft site for £255 million from the Crown Estate.
From the outset, security concerns were raised due to the site’s location near the Square Mile’s critical communications infrastructure.
The purchase immediately sparked a debate over the risks of allowing a foreign power to establish a major diplomatic presence so close to the UK’s financial and digital heartlands.

The current revelations about the subterranean complex and the 'spy dungeons' have only deepened the unease, with some critics suggesting that the embassy could serve as a base for surveillance operations targeting not only the UK but also global entities.
Adding to the growing furor, reports have surfaced that the proposed embassy would include a 'spy campus,' complete with on-site accommodation for over 200 intelligence officers.
This revelation has further fueled fears that the site could become a hub for espionage activities, potentially undermining the UK’s national security.
The redacted planning documents, which detail the existence of unlabelled basement rooms and tunnels, have been described as 'shocking' by Shadow Justice Secretary Robert Jenrick, who has accused the government of prioritizing diplomatic relations with China over the protection of British interests.
His comments have echoed the sentiments of many who believe that the approval of the embassy would represent a dangerous compromise.
China has dismissed the allegations, with officials insisting that the embassy will be a purely diplomatic facility.
However, the claims have not been refuted by the Chinese government, leaving many to question the true nature of the project.
Meanwhile, BT has confirmed that it has 'robust security measures in place' to protect its assets, though it has not commented on the specific concerns raised by the leaked documents.
As the debate intensifies, the eyes of the world are now on Sir Keir Starmer, whose decision on the application could determine whether the UK’s national security or its diplomatic ties with China take precedence.
The stakes have never been higher, and the clock is ticking.
Photos